2 Bedroom Floor Plans

Willow Grove’s 2 bedroom plans.

Elwood Duo, Eden F, Somers, Grange, Dominion, Pavilion 2

Elwood Duo

60sqm 12.5m x 4.8m

Perfect for: Granny flats, small second dwellings, work-life retreats (with modifications), caravan park homes, main residences.

Shower

Verandah

Energy Rated

Washing Machine Facilities

Wardrobe

*Currently on display in our Display Village

Enquire Now
Download Floorplan

Eden F

90.0sq.m. (9.68sq) 12.0m x 7.5m

Shower

Pergola Deck

Washing Machine Facilities

Wardrobe

Wall Oven

Energy Rated

*Currently on display in our Display Village

Enquire Now
Download Floorplan

Somers

53.6 sq.m. 11.4m x 4.7m

Perfect for: Granny flats, small second dwellings, work-life retreats (with modifications), caravan park homes, main residences.

Shower

Porch

Washing Machine Facilities

Energy Rated

Wardrobes

Enquire Now
Download Floorplan

Grange

60.0 sq.m. 9.375m x 6.4m

Perfect for: Granny flats, small second dwellings, work-life retreats (with modifications), caravan park homes, main residences.

Shower

Verandah

Energy Rated

Washing Machine Facilities

Wardrobe

Enquire Now
Download Floorplan

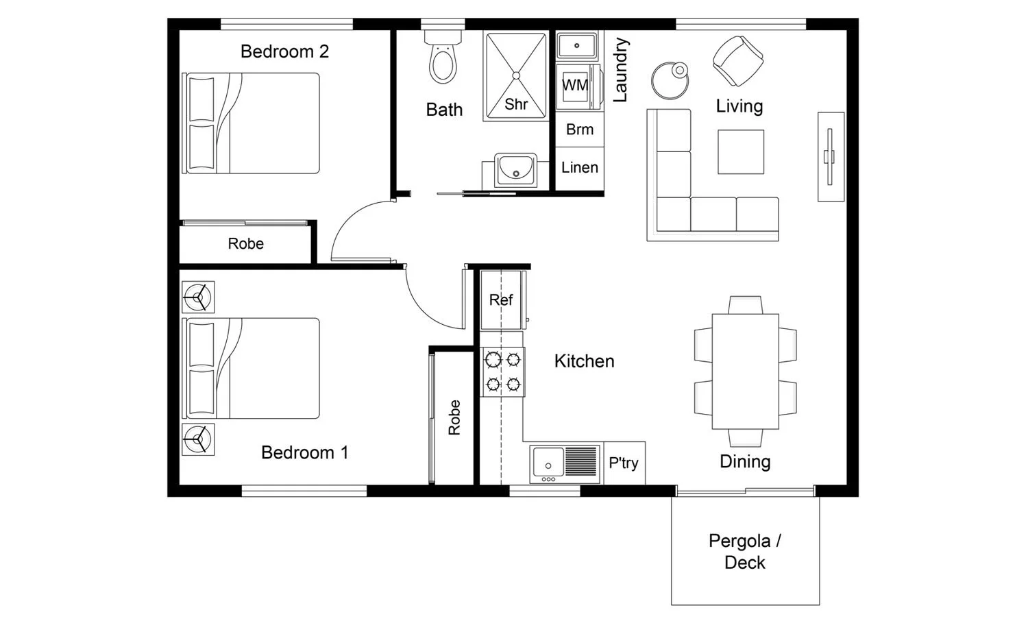
Dominion

60sqm 12.5m x 4.8m

Perfect for: Granny flats, small second dwellings, work-life retreats (with modifications), caravan park homes, main residences.

Shower

Pergola Deck

Energy Rated

Washing Machine Facilities

Wardrobes

Enquire Now
Download Floorplan

Pavilion

60.0 sq.m. 8.0m x 7.5m

Perfect for: Granny flats, small second dwellings, work-life retreats (with modifications), caravan park homes, main residences.

Perfect for: Granny flats, work-life retreats (with modifications), caravan park homes, main residences.

Shower

Pergola Deck

Washing Machine Facilities

Wardrobe

Energy Rated

*Currently on display in our Display Village

Enquire Now
Download Floorplan

Visit Our Display Village

OPEN EVERY MONDAY - SATURDAY

At our display village you will receive friendly helpful advice and quality service. Stroll through our 1, 2 and 3 bedroom options to see the Willow Grove difference and talk to us about your home or granny flat plans.



Visit Our Display Village:

2 Waterview Close (Cnr South Gippsland Hwy), 
Dandenong South 3175 VIC 


Opening Hours

Open Monday to Saturday, 10am – 4pm 


Phone

(03) 9799 8500  


Email

info@willowgrovegrannyflats.com.au


CONTACT WILLOW GROVE

Let’s create the right living
solution for you.

Whether you’re ready to build a granny flat, look at an investment home, or seeking expert advice, our friendly team are here to help.

Get in touch today to arrange your visit to our display village.

PHONE

03 9799 8500

EMAIL

info@willowgrovegrannyflats.com.au

• VISIT OUR DISPLAY VILLAGE

2 Waterview Close
(Cnr South Gippsland Hwy)
Dandenong South VIC 3175

• OPENING HOURS

Monday to Saturday, 10am - 4pm